Objektart
Etagenwohnung
Adresse
99817 Eisenach, Unter dem Pflinzhöck 4
Objektdaten
Informationen
Baujahr
1993
Zustand
gepflegt
bezugsfrei ab
16.05.2026
Ausstattung
Heizkosten sind in Nebenkosten enthalten
Balkon / Terrasse
Garage / Stellplatz
WBS erforderlich
Haustiere
Details
Nebenkosten (ca.)
100,- €
Warmmiete (ca.)
380,- €
Kaution
2 Kaltmieten
Etage
3
Schlafzimmer
1
Badezimmer
1
Provision für Mieter
keine
Provisionshinweis
Alle Angaben sind ca. Angaben und können von den tatsächlichen Werten abweichen.Das vorliegende Angebot ist freibleibend und unverbindlich.Die Angaben zum Objekt stammen vom Vermieter / Verkäufer und dienen einer ersten Information. Für die Richtigkeit und Vollständigkeit wird keine Haftung übernommen.
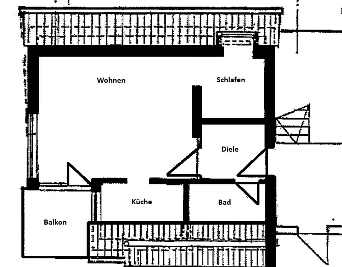
in Stadtrandnaher Lage in ruhigem Mehrfamilienhaus gelegene 1,5-Raumwohnung im Dachgeschoss mit Balkon und Stellplatz
Wohnzimmer mit großem, sonnigem Balkon
Tageslichtbad mit Wanne, Waschbecken und WC
Küche mit Fenster
Flur
Balkon
Keller
Stellplatz
Die Wohnräume sind mit Laminat ausgestattet.
Das Bad ist gefliest.
- im Ortsteil Stockhausen im schönen Nessetal gelegen
- öffentliche Verkehrsmittel in unmittelbarer Nähe
- nach Eisenach Entfernung ca. 10 Minuten
- sehr gute Autobahnanbindung
Hausmeisterdienst
Waschmaschinenraum
Trockenraum
Energieausweis (Verbrauchsausweis)
129 kWh / (m²*a) Energieverbrauchskennwert
129 kWh / (m²*a) Energieverbrauchskennwert
129 kWh / (m²*a) Energieverbrauchskennwert
129 kWh / (m²*a) Energieverbrauchskennwert
129 kWh / (m²*a) Energieverbrauchskennwert
Weitere Informationen
| Befeuerung | Erdgas leicht |
| Energieverbrauch für Warmwasser | enthalten |
| Energieausweis Baujahr | 1993 |
| Heizung | Zentralheizung |
Ich bin damit einverstanden, dass mir Karten von Google angezeigt werden. Es gelten die Datenschutzbedingungen von Google (https://policies.google.com/privacy).
Ich bin einverstanden